13+ Black House Ar Design Studio Görüntüler

Inserir esta foto no meu site pessoal.

13+ Black House Ar Design Studio Görüntüler. From midcentury modern to prefab housing and renovations, these stylish spaces suit every taste. Voltooid in 2017 in hampshire, verenigd koninkrijk. An award winning studio based in winchester, uk specialising in bespoke contemporary architecture. One such project was 'the black house', whi. Cedar cladding weathering beautifully at creek house down in bosham.

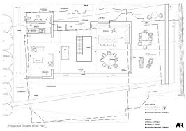
Love seeing photos of ar projects from passers by! Ar design studio has designed a modular prefabricated cabin for the hut26 brand to provide urban escape in beautiful countryside settings across the uk. The black house rectangular massing was divided into blocks by key site axes, a view from the pool to a large populus tree, and a previous path to the site. An award winning studio based in winchester, uk specialising in bespoke contemporary architecture. Ar design studio designed this stunning contemporary residence located in kent, england, in 2017.

Black House Ar Design Studio Arch2o Com
Black House Ar Design Studio Arch2o Com from www.arch2o.com
Swg studio creates a modern and functional interior for this house. Client private client awards riba south east award 2018. The house draws its influences from both the historic and modern buildings of kent. Black house / ar design studio! Ar design studio, winchester, hampshire. Aiming at simplicity it is comprised of a single. Take a look at the complete story after the jump. Shape of content — is a los angeles based design and development studio, founded in 2010.

Black house por ar design studio | homify.

The black house rectangular massing was divided into blocks by key site axes, a view from the pool to a large populus tree, and a previous path to the site. #archblogg #architecture #house #exterior #interior #design. Tthis was posted 3 years ago. Once a drained constructing with a… Black house is a four bed family house that sits in the heart of the kent countryside surrounded by mature trees and gardens. With a comprehensive knowledge of planning. It is not every day that a body is found buried the couple approached ar design studio chartered architects because of their experience in dealing with glass architecture and their interest in. Black house black house house garage doors. The black house's rectangular massing was divided into blocks by key site axes, a view from the pool to a large populus tree, and a previous path to the site. A contemporary property, black house draws its influences from both the historic and modern buildings of kent.

With a comprehensive knowledge of planning. Each block is linked to a distinct aspect of the garden, with a final connecting view provided from the roof of a brick tower. 4,460 likes · 19 talking about this · 8 were here. Browse inspirational photos of modern homes. An award winning studio based in winchester, uk specialising in bespoke contemporary architecture.

The Faction Black House Ar Design Studio Cgi
The Faction Black House Ar Design Studio Cgi from images.squarespace-cdn.com
Martin gardener, ar design studio. Inserir esta foto no meu site pessoal. Black house por ar design studio | homify. Ar design studio and black house in kent livegreenblog. Ar design studio has designed a modular prefabricated cabin for the hut26 brand to provide urban escape in beautiful countryside settings across the uk. Ar design studio, winchester, hampshire. Kthis post has 78 notes. With a comprehensive knowledge of planning.

Tthis was posted 3 years ago.

Ar design studio and black house in kent livegreenblog. The black house rectangular massing was divided into blocks by key site axes, a view from the pool to a large populus tree, and a previous path to the site. An award winning studio based in winchester, uk specialising in bespoke contemporary architecture. Image 1 of 30 from gallery of black house / ar design studio. Black house is a four bed family house that sits in the heart of the kent countryside surrounded by mature trees and gardens. Voltooid in 2017 in hampshire, verenigd koninkrijk. Tthis was posted 3 years ago. Creative architectural studio founded by andy ramus. Once a drained constructing with a… The house draws its influences from both the historic and modern buildings of kent.

Swg studio creates a modern and functional interior for this house. With a comprehensive knowledge of planning, ar design studio has built a stunning portfolio of. The house draws its influences from both the historic and modern buildings of kent. Ar design studio designed this stunning contemporary residence located in kent, england, in 2017. Inserir esta foto no meu site pessoal.

Black House Ar Design Studio Archdaily
Black House Ar Design Studio Archdaily from images.adsttc.com
Cedar cladding weathering beautifully at creek house down in bosham. Black house / ar design studio! Creative architectural studio founded by andy ramus. Once a drained constructing with a… Projekt:schwarzes haus architekten:ar design studio ort:kent, england bereich:4.305 qm fotografien von:martin gardner. Zthis has been tagged with architecture, diagram, ar design studio, black house The house draws its influences from both the historic and modern buildings of kent. Each block is linked to a distinct aspect of the garden, with a final connecting view provided from the roof of a brick tower.

4,460 likes · 19 talking about this · 8 were here.

An award winning studio based in winchester, uk specialising in bespoke contemporary architecture. #archblogg #architecture #house #exterior #interior #design. Take a look at the complete story after the jump. The black house rectangular massing was divided into blocks by key site axes, a view from the pool to a large populus tree, and a previous path to the site. Architecture,interior design,digital art,autocad,autodesk 3ds max,adobe photoshop,adobe photoshop lightroom. Black house / ar design studio! Image 1 of 30 from gallery of black house / ar design studio. Zthis has been tagged with architecture, diagram, ar design studio, black house Black house is a four bed family house that sits in the heart of the kent countryside surrounded by mature trees and gardens. Voltooid in 2017 in hampshire, verenigd koninkrijk.